Immobilien Lounge Regensburg GmbH
Verschiedene Immobilienangebote in Regensburg und Umgebung

Hallenflächen in verkehrsgünstiger Lage - auch für Lebensmittelbranche

Hallen in 84085 Langquaid

  • Objekt-Nr.0814
  • Kaltmiete2 500,00 €
  • Gesamtfläche396,0 m²

Beschreibung

Beschreibung der Ausstattung

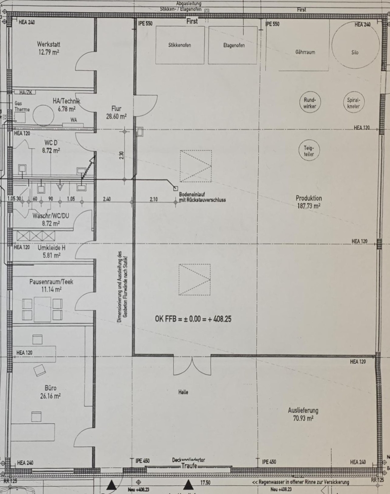
* ca. 259 m² Lager-/Hallenfläche
* ca. 26 m² Bürofläche
* ca. 111 m² weitere Nutzfläche
* Lebensmittelproduktion-/Verarbeitung möglich
* WCs mit Dusche und Umkleide
* Sozialraum mit Teeküche
* ausreichend Parkmöglichkeiten

Lage

Langquaid ist ein Markt im niederbayerischen Landkreis Kelheim und liegt zwischen Landshut (etwa 45 Kilometer südlich) und Regensburg (etwa 30 Kilometer nördlich).

Als Markt mit aufstrebender Wirtschaft, ausgezeichneter Infrastruktur, qualifizierten Arbeitskräften sowie einer günstigen Lage im Verkehrsnetz bietet Langquaid optimale Standortbedingungen für eine erfolgreiche unternehmerische Tätigkeit.

Da Langquaid zwischen dem Anschluss an der BAB 93 und der B 15 neu liegt ist eine schnelle Anbindung an der überregionale Straßennetz gegeben.

Objektbeschreibung

In einem Gewerbegebiet im Markt Langquaid bieten wir diese Gewerbefläche zur Vermietung an.
Sie bietet beste Möglichkeiten für Betriebe der Lebensmittelproduktion- und Verarbeitung; aber auch jedes andere Gewerbe ist möglich.

Die Hallen-/Lagerfläche beträgt ca. 259 m². Die Hallenhöhe beträgt hier ca. 4 bis 5 Meter.
Die ebenerdige Lagerfläche kann über ein elektrisch betriebenes Tor (ca. 4,0 x 2,8 Meter) angedient und im Innenbereich durch ein weiteres Tor (ca. 2,5 x 2,8 Meter) abgeteilt werden.

Ein großer Büroraum (ca. 26 m²) sowie eine WC-Anlage mit Dusche und Umkleide stehen zur Verfügung. Beheizt wird mittels Gasheizung.

Am Objekt stehen ausreichend Parkmöglichkeiten zur Verfügung.

Ein interessantes Objekt für vielerlei Branchen!

Sonstige Angaben

Bitte beachten Sie, dass für die im Exposé aufgeführten Angaben keine Haftung übernommen wird.

Ein Energieausweis ist in Erstellung.

Wir bieten Ihnen gerne an, sich bei einem persönlichen Termin in unserer Immobilien Lounge
unverbindlich über dieses und weitere interessante Objekte zu informieren.

Vereinbaren Sie einfach einen Termin oder nennen Sie uns gleich einen Terminvorschlag!

Objektangaben

StraßeGewerbering
Kaution Hinweis2 Nettomonatsmieten
Gesamtfläche396,0 m²

Ausstattung

Kontakt

*) Pflichtfelder